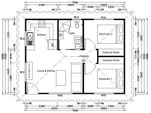
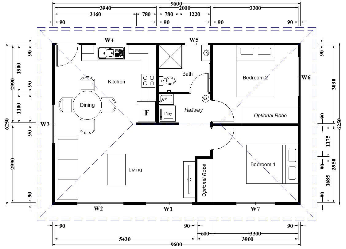
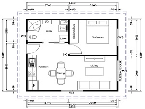
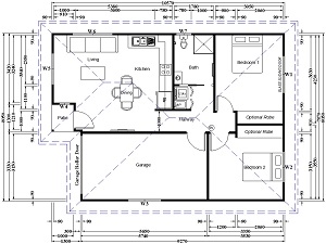
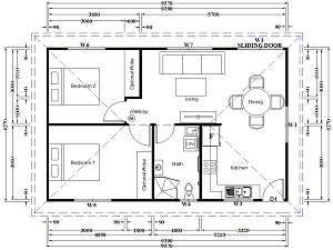
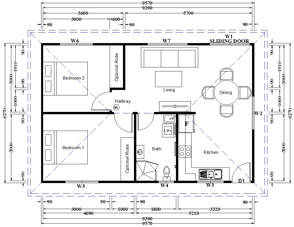
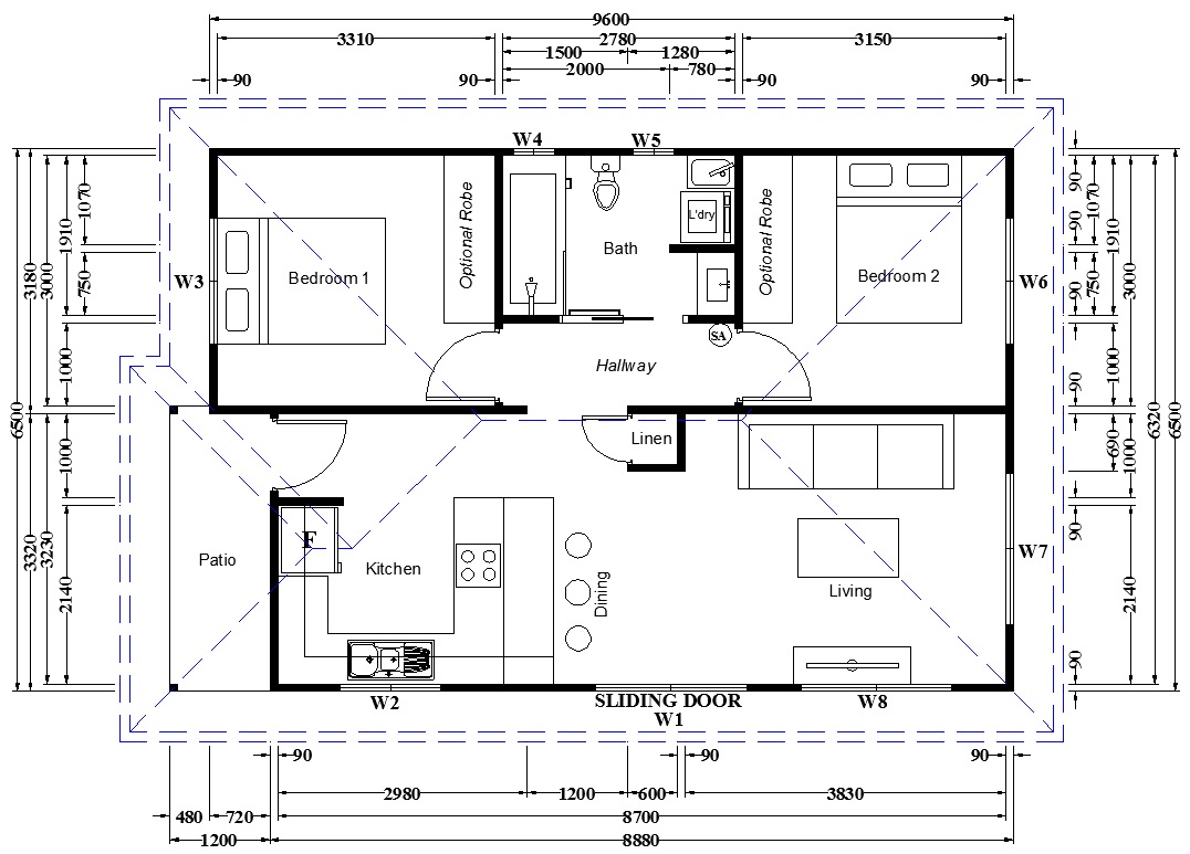
Build My Granny Flat

*Please click on little Button under your Design & Continue...

Step 2: Select Optional Upgrades:

Externals

See Cladding Options (Opens In New Window)

See Roof Covering Options (Opens In New Window)

See Roof Shapes (Opens In New Window)

Internals

Doors

Windows

See Our Standard Windows (Opens In New Window)

Bathroom

Bedrooms

Kitchen:

Electrical & Services

Security

Your Turn-Key Build Price:

Incl. GST

Secure Your Quotation:

Contact Details